ampersandarrow-uparrowbricksbuildercheck-circleclosecrane-hookcut-square-brcut-wide-brczech-deco-teamdoorsdownloadfacebookfloating-contact-bghouseinstagramkancelarske-prostorykeymagnifierobchodni-prostorypenphoneplaypudni-vestavbyquotesrating-star-halfrating-starrestauracni-prostoryrevitalizationthumbs-upupload

Architektonický návrh interiérů​

Architektonický návrh interiéru, který dává vašemu prostoru smysl

Architektonický návrh interiéru je klíčovým krokem k bezchybné a rychlé realizaci. Umožňuje promyslet každý detail ještě předtím, než začne samotná stavba. Díky tomu nedochází k nepřesnostem ani zbytečným změnám během prací – a to znamená úsporu času i peněz.
Tým StavbaDesign propojuje návrh s reálnou realizací, takže veškeré výkresy, materiály a technická řešení odpovídají skutečným možnostem stavby.

Architekt, stavební dozor a realizační tým pracují od začátku v součinnosti, což minimalizuje chybovost a zaručuje plynulý průběh celé rekonstrukce. Díky architektonickému návrhu získáte přesnou kalkulaci, kontrolu nad rozpočtem a jistotu, že výsledek bude odpovídat vaší představě – bez kompromisů a bez zbytečných vícenákladů. Získáte tak jistotu, že od první skici až po poslední detail bude celý projekt dávat smysl, logicky na sebe navazovat a odpovídat vašemu životnímu stylu.

Rádi vám nabídneme konzultaci zdarma přímo na místě vašeho projektu!

S námi nic neriskujete – architektonický návrh vám pomůže ušetřit čas, peníze i stres při realizaci. Vše promyslíme do detailu, aby vaše rekonstrukce proběhla hladce a bez chyb.

Referenční projekty

Naše architektonické návrhy proměňují běžné prostory v funkční a esteticky výjimečné interiéry. Každý projekt je originál – od prvního náčrtu až po finální realizaci.
Podívejte se na naše reference a inspirujte se, jak může i váš interiér získat nový rozměr díky promyšlenému architektonickému řešení.

Co je to architektonický návrh interiéru?

Architektonický návrh interiéru je profesionálně zpracovaný plán prostoru, který převádí vaše představy do konkrétních výkresů a technických řešení. Architekt navrhne dispoziční uspořádání místností, rozmístění nábytku, osvětlení, zásuvek i vypínačů, a navrhne také povrchy, materiály a barevnost. Součástí je okótovaný půdorys, návrhy elektroinstalací, detailní výkresy truhlářských výrobků i technické podklady pro stavební firmu či výrobce nábytku.

Tyto plány slouží jako přesné zadání pro realizaci – čím kvalitnější je návrh, tím rychleji a levněji lze interiér postavit. Architektonický návrh tak není jen estetickým podkladem, ale praktickým nástrojem, který spojuje estetiku, funkčnost a technickou proveditelnost v jediný celek. Správně zpracovaný návrh vám pomůže předejít chybám, které by při realizaci mohly stát desítky tisíc korun – a zajistí, že váš nový interiér bude krásný, praktický i dlouhodobě udržitelný.

Návrh dispozičního řešení – okótovaný půdorys s popisky

Návrh elektroinstalací, bouracích prací, výkres nově stavěných konstrukcí

Návrh podlahových krytin, dveří, koupelny a wc, kuchyně, osvětlení a topných těles

Rozkreslení truhlářských výrobků na míru vč. kót a popisu materiálů, vnitřní dělení – výkresy slouží jako zadání pro truhláře

Spolupráce, která vede k výsledku

Součet všech těchto částí vytváří kreativní prostor pro nalezení nejlepších řešení: řešení, která uspokojí rozpočet, estetiku a stavitelnost najednou. I když k nám někteří z klientů přichází s již vybraným architektem, mnoho z nich také ne, a tehdy využijí architekta z našich řad. Jako zkušený partner vás provedeme celým procesem vašeho projektu, od snění, výběru architekta až po dokončení stavby.

Máme své vlastní architekty případně spolupracujeme se spoustou talentovaných architektů z CzechDecoTeam®, takže vás můžeme spojit s tím, jehož odbornost a styl jsou tím pravým řešením pro váš projekt.

Jak mohou jednotlivé výkresy vypadat?

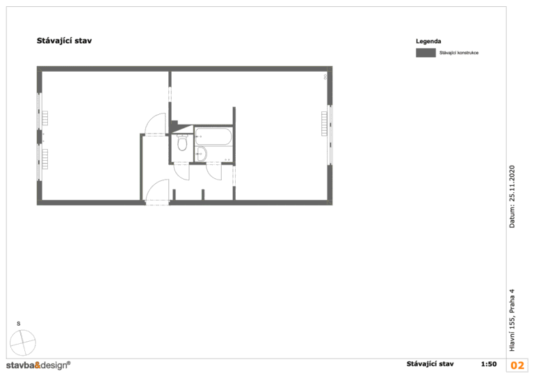
Stávající stav

Výkres, který vznikne po zaměření stávajícího stavu nebo po překreslení staršího výkresu dodaného klientem a po jeho zkontrolování a překreslení.

Navrhovaný stav

Obsahuje návrh řešení celého bytu či domu zahrnuje veškeré změny v příčkách jednotlivých místností, navrhuje umístění mobiliáře budoucího bytu či domu.

Bourací konstrukce

Výkres, na základě kterého je přesně dané, které příčky nebo stěny má stavba zbourat.

Nové svislé konstrukce

Výkres, který slouží stavbě, aby věděla, kde postavit nové příčky či předstěny

Nové koupelny

Obsahuje návrh obkladů, dlažeb, předpokládaný kladecí plán a zařizovací předměty, vč. jejich specifikace a umístění

Návrh WC

V případě, že je samostatný – obsahuje návrh obkladů, dlažeb, předpokládaný kladecí plán a zařizovací předměty, vč. jejich specifikace a umístění.

Návrh elektro

Výkres elektro, který vychází z dispozičního řešení a zohledňuje veškeré potřeby klienta na silnoproudé vedení jako jsou vývody světel, zásuvky a vypínače, rozvaděč (vč. jejich umístění) a současně slaboproudé jako jsou domácí zvonky, STA (domovní anténa), UTP kabeláž (počítačové rozvody) apod. Výkres je vždy přesně okótovaný.

Návrh podklahových kritin

Výkres, který definuje jednotlivé podlahové krytiny. Těmi mohou být např. dřevěné či laminátové podlahy, vinyly, ale také dlažby. Jednotlivé typy podlah mohou mít různou výšku a je nezbytné, aby stavba provedla pokládku jednotlivých podlah tak, aby k jejich napojení došlo přesně, bez použití přechodových lišt.

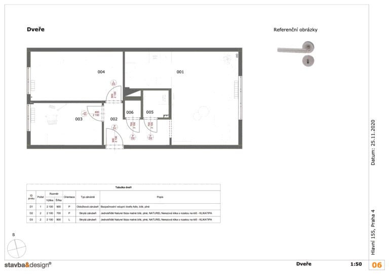
Návrh interierových dveří

Výkres, který definuje jednotlivé podlahové krytiny. Těmi mohou být např. dřevěné či laminátové podlahy, vinyly, ale také dlažby. Jednotlivé typy podlah mohou mít různou výšku a je nezbytné, aby stavba provedla pokládku jednotlivých podlah tak, aby k jejich napojení došlo přesně, bez použití přechodových lišt.

Návrh kuchyňské linky

Výkres, který znázorňuje dispoziční řešení kuchyně, její tvar, barevné a materiálové provedení. Klientům současně navrhujeme spotřebiče v kategorii kuchaně, kterou klient objednává. Na základě takových výkresů jsou truhláři schopni připravit projektovou dokumentaci, podle které je kuchyň následně vyrobena.

Návrh vestavných skříní, šaten a ostatního nábytku

Výkres, který znázorňuje dispoziční řešení šaten a vestavných skříní, jejich tvar, barevné a materiálové provedení. Na základě takových výkresů jsou truhláři schopni připravit projektovou dokumentaci, podle kterých nábytek vyrobí a nainstalují.

Projekční práce

Projektujeme interiéry i exteriéry dle architektonických studií až po prováděcí dokumentace. Naším odpovědným zástupcem pro provádění staveb, jejich změn a odstraňování je autorizovaný projektant Mgr. Ing. Jindřich Sadílek, který kromě projekční činnosti řeší i kontrolu vlastního provedení náročnějších staveb. Spolupracujeme i s dalšími externími projekčními kancelářemi, které vybíráme podle typu realizované stavby.

Všechny naše spolupracující kanceláře vynikají dlouholetými profesními zkušenostmi, které se projevují právě v ekonomičnosti konverze architektonických nápadů do vlastních realizací, podle který jsme schopni stavební dílo zdárně dokončit. Projekční kanceláře jsou prověřeny dlouhodobou spoluprací.

Nepřehlédněte

Nový showroom
otevřen!

Navštivte nás na Libečkově, Praha, a objevte moderní design v celé jeho kráse.

Více info

Podtrhněte svou rekonstrukci krásným nábytkem od DELIFE

Prohlédněte si širokou nabídku kvalitního, designového nábytku.

Obecné

S radostí oznamujeme otevření našeho nového showroomu Delife v Praze! Najdete nás na adrese Libečkova 380/10, Praha 5

Rekonstrukce bytů

3 roky záruky na stavební práce od Stavbadesign Prodloužená záruka pro větší jistotu při stavbě i rekonstrukci U stavby nebo rekonstrukce nerozhoduje jen cena a termín, ale také to, jakou jistotu máte po předání díla. Právě proto nabízíme u vybraných realizací prodlouženou záruku na stavební práce v délce 3 let. Jde o nadstandard, který má klientům přinést větší klid, vyšší důvěru ve […]

Rádi vám nabídneme konzultaci zdarma přímo na místě vašeho projektu!

S námi nic neriskujete, rekonstrukci bytu, domu nebo stavbu vašeho vysněného rodinného domu na klíč vám postavíme v dohodnutém termínu, vysoké kvalitě použitých materiálů a dlouhé životnosti.