3 roky ZÁRUKA | Stavba&Design nabízí prodlouženou záruku na stavební práce
Stavba&Design: 3 roky bez starostí 3 roky ZÁRUKA | Nabízíme
Rekonstrukce panelového bytu často přichází za pět minut dvanáct. Pokud jste se rozhodli, že chcete svůj byt v panelovém domě zrekonstruovat, jste na správném místě. S dobrou přípravou, trochou trpělivosti a kvalitní stavební firmou pro vás bude rekonstrukce hračka. V tomto kompletním průvodci rekonstrukcí najdete informace o postupu, ceně rekonstrukce, častých chybách i inspiraci pro vaši vlastní rekonstrukci.
Než se do rekonstrukce pustíte, doporučujeme udělat si představu o tom, co od ní očekáváte. Projděte se po bytě a zkuste se na něj podívat, jako byste tu byli na návštěve. Co se vám na provní pohled líbí? Co naopak ne? Zapište si všechno, co vám ve spojitosti s renovací domácnosti přijde na mysl.
Dělejte si průběžně poznámky o aktuálních trendech (interiérových i technologických), na které narazíte a líbí se vám, nebo o tom, co vás na vašem bytě rozčiluje. (Například málo úložného prostoru v kuchyni, nedostatečné oddělení pracovní a volnočasové plochy atd.)
Čím přesnější představu o rekonstrukci budete mít, tím hladší bude vaše následná spolupráce se stavební firmou, potažmo s architektem nebo designérem.
Pokud chcete, aby vám rekonstrukce sloužila ještě dlouhá léta a rozhodnete se ji vzít z gruntu, vyplatí se svěřit svůj byt do péče architektovi.
Práce jako
Architekt je odborník, který má spoustu zkušeností a vaše dobré nápady dokáže lépe zasadit do kontextu celého bytu. Také je třeba zmínit, že právě architekt dokáže mnohdy najít geniální řešení prostoru, které by vás samotné nemuselo napadnout.
Ve stavba&design spolupracujeme se špičkovými architekty. Pokud se tedy rozhodnete pro spolupráci s námi, vyhnete se neočekávaným nákladům nebo zdržením, která mohou plynout ze stavebních prácí prováděných bez architektonického návrhu a plánu. V panelovém bytu je rekonstrukci při zásahu do příček nutné dělat odborně, jeden kubický metr betonu váží tři tuny, práce s ním je těžká a vyžaduje odborný postup.
Jak mohou vypadat architektonické návrhy interiéru panelového bytu?
Orientační cenu rekonstrukce vašeho bytu vám sdělíme do 48 hodin po úvodní konzultaci, která je u nás pro klienty zdarma. Na této schůzce nám sdělíte své představy a preference a my si byt pořádně prohlédneme. Abyste mohli získat představu o ceně již před schůzkou, podívejte se na tři varianty rekonstrukcí i s příklady, které uvádíme v článku „Kolik stojí rekonstrukce bytu?“.
Jakmile se spolu domluvíme na všech podrobnostech včetně data zahájení rekonstrukce, je čas podepsat smlouvu o díle, ve které budou termíny zahájení a ukonční rekonstrukce, cenová kalkulace, specifikovaný rozsah práce a stavební materiály. Smlouva o díle vás chrání. Díky tomu, že realizujeme rekonstrukce převážně na klíč, se můžeme za svou práci 100% zaručit. Pokud by nastala nějaká reklamace naší práce (což se nám za posledních 5 let nestalo), můžete se spolehnout na náš férový a odpovědný přístup.
Pokud se ale rozbije něco od našich dodavatelů (vybavení typu výtah, myčka, lednice atd.), můžete si být jistí, že to vyřídíme rychle. Vybíráme si dodavatele, kteří mají nízkou poruchovost produktů, a pokud se objeví, neprodleně dojde k opravě.
Pokud se například výjimečně zasekne výtah od našeho dodavatele firmy Schindler, jejich technik je většinou za pět minut na místě a problém řeší.
Jestli se rozhodnete pustit se do rekonstrukce se stavba&design:
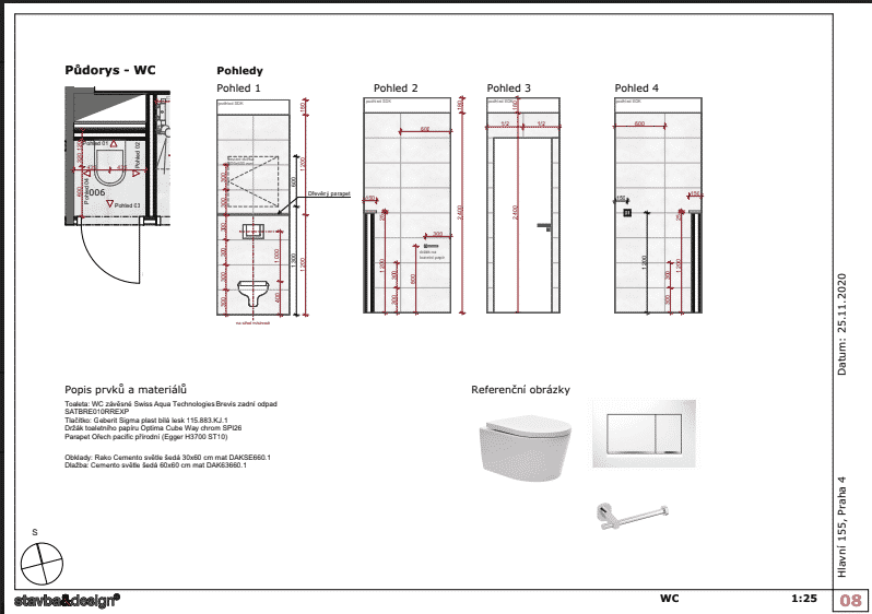
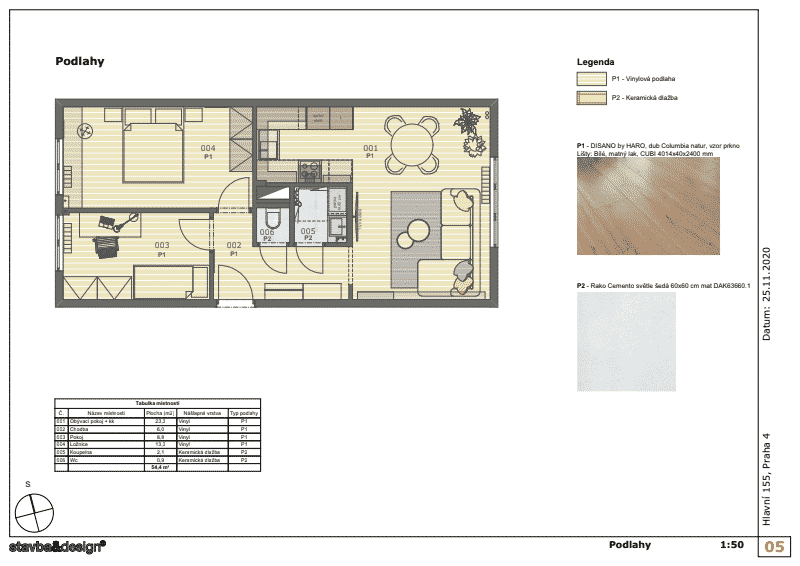
Inspirovat se můžete naší případovou studií rekonstrukce 3+1 v panelovém domě na Praze 10, kde jsme provedli rekonstrukci bytového jádra, koupelny, obývacího pokoje a předsíně s rozpočtem 750 tisíc Kč. Jsme si téměř jistí, že vás fotky „před“ a „po“ ohromí stejně jako majitelku.
Pro více inspirace krásnými interiéry si prohlédněte galerii našich referencí.
5 inspirativních tipů pro rekonstrukci
V panelových bytech bývá v létě úmorné horko. Rekonstrukce je dobrým časem na zvážení pořízení nástěnné klimatizace. Protože klimatizace vyžaduje náročnější instalaci a nutnost stavebních úprav, je vhodné její umístění a instalaci nechat na odbornících.
Stavba&Design: 3 roky bez starostí 3 roky ZÁRUKA | Nabízíme

Jak vybrat kvalitní stavební firmu? 7 klíčových úvah pro výběr
Je nyní vhodná doba na stavbu rodinných domů? Vyplatí se
Cena půdní vestavby Kolik vás bude stát rekonstrukce půdy? Cena
Chytrá domácnost a centrální systém řízení IoT Co je to
3 nejčastější chyby při rekonstrukci bytu či domu Na co